电动矩形百叶式调节蝶阀
- 销售:
- 销售:
- 传真:
详情介绍
- 产品介绍
- 服务承诺
- 订货流程
电动矩形百叶式调节蝶阀配置电动执行机构广泛应用于建材、冶金、矿山、电力等生产过程,能自动控制或手动控制调节管路中介质流量,蝶板采用百叶多轴体结构,流体均匀,启闭力矩小,动作灵敏,性能可靠。
阀体材料:碳钢、不锈钢
主要技术参数
公称压力PN | 0.005MPa |
适用温度 | -30~350℃ |
适用介质 | 粉尘、含尘气体 |
泄漏量 | ≤3% |
阀门启闭时间 | 25秒 |
输入信号(直流) | Ⅱ型0~10mA,Ⅲ型4~20mA |
输入通道 | 3个 |
输入电阻 | Ⅱ型200Ω,Ⅲ型250Ω |
电源电压 | 220V±20V,50HZ |
介质流速 | ≤25m/s |

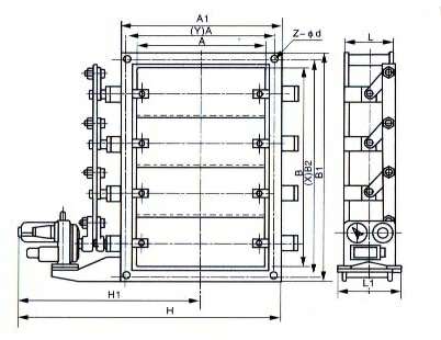
主要外形连接尺寸
A×B | A1×B1 | A2×B2 | L | L1 | H1 | H | b | Z-Фd | X | Y | 输线 | 执行器 | Wt/Kgs |
320×180 | 375×105 | 400×240 | 180 | 245 | 580 | 735 | 8 | 16-14 | 5 | 3 | 2 | DKJ-210 | 184 |
320×250 | 375×395 | 400×330 | 180 | 245 | 625 | 825 | 8 | 16-14 | 5 | 3 | 2 | DKJ-210 | 194 |
400×200 | 455×255 | 500×330 | 200 | 245 | 610 | 805 | 8 | 16-18 | 5 | 3 | 2 | DKJ-210 | 215 |
400×320 | 455×375 | 500×420 | 200 | 245 | 870 | 915 | 8 | 16-18 | 5 | 3 | 2 | DKJ-210 | 263 |
500×200 | 555×255 | 600×300 | 220 | 245 | 610 | 805 | 8 | 16-18 | 5 | 3 | 3 | DKJ-210 | 272 |
500×400 | 555×455 | 600×500 | 220 | 245 | 370 | 915 | 8 | 20-18 | 5 | 5 | 3 | DKJ-210 | 292 |
630×320 | 685×375 | 730×420 | 220 | 245 | 610 | 805 | 10 | 20-18 | 7 | 3 | 3 | DKJ-210 | 322 |
630×400 | 685×455 | 730×500 | 220 | 245 | 710 | 995 | 10 | 24-18 | 7 | 5 | 3 | DKJ-210 | 354 |
800×400 | 855×455 | 900×500 | 240 | 300 | 670 | 945 | 10 | 24-18 | 7 | 5 | 4 | DKJ-310 | 443 |
800×630 | 855×685 | 900×730 | 240 | 300 | 710 | 995 | 10 | 28-18 | 7 | 7 | 4 | DKJ-310 | 590 |
1000×500 | 1070×570 | 1130×830 | 260 | 300 | 790 | 1075 | 10 | 24-23 | 7 | 5 | 4 | DKJ-310 | 640 |
1000×800 | 1070×870 | 1130×930 | 260 | 300 | 905 | 1270 | 10 | 28-23 | 7 | 7 | 4 | DKJ-310 | 770 |
1250×630 | 1320×700 | 1380×760 | 280 | 300 | 1005 | 1505 | 10 | 32-23 | 9 | 7 | 5 | DKJ-310 | 790 |
1250×1000 | 1320×1070 | 1380×1130 | 280 | 300 | 1105 | 1705 | 10 | 32-23 | 9 | 7 | 5 | DKJ-310 | 920 |
1400×800 | 1470×870 | 1530×930 | 300 | 385 | 1075 | 1575 | 10 | 36-23 | 11 | 7 | 5 | DKJ-410 | 940 |
1400×1250 | 1470×1320 | 1530×1380 | 300 | 385 | 1300 | 2025 | 10 | 40-23 | 11 | 9 | 5 | DKJ-410 | 1240 |
1600×1000 | 1670×1070 | 1730×1130 | 320 | 385 | 1175 | 1775 | 10 | 36-23 | 11 | 7 | 5 | DKJ-410 | 1540 |
1600×1250 | 1670×1320 | 1730×1380 | 320 | 385 | 1300 | 2025 | 10 | 40-23 | 11 | 9 | 5 | DKJ-410 | 1680 |
1800×1250 | 1870×1320 | 1930×1380 | 340 | 420 | 1450 | 2175 | 10 | 44-23 | 13 | 9 | 6 | DKJ-510 | 1846 |
1800×1400 | 1870×1470 | 1930×1530 | 340 | 420 | 1525 | 2325 | 10 | 48-23 | 13 | 11 | 6 | DKJ-510 | 1953 |
2000×1250 | 2070×1320 | 2130×1380 | 360 | 420 | 1450 | 2175 | 10 | 48-23 | 15 | 9 | 6 | DKJ-510 | 2170 |
2000×1800 | 2070×1670 | 2130×1730 | 360 | 420 | 1620 | 2520 | 12 | 52-23 | 15 | 11 | 6 | DKJ-510 | 2392 |
2500×1800 | 2570×1870 | 2630×1730 | 420 | 450 | 1695 | 2595 | 12 | 56-23 | 17 | 11 | 8 | DKJ-610A | 2740 |
2500×2000 | 2570×2070 | 2630×2130 | 420 | 450 | 1895 | 2995 | 12 | 64-23 | 17 | 15 | 8 | DKJ-610A | 2801 |
2800×2500 | 2870×2570 | 2930×2630 | 440 | 450 | 2145 | 3195 | 12 | 72-23 | 19 | 17 | 8 | DKJ-610A | 3118 |
3200×2800 | 3270×2870 | 3330×2930 | 480 | 480 | 2325 | 3825 | 12 | 80-23 | 21 | 19 | 10 | DKJ-610 | 3535 |
3600×3200 | 3670×3270 | 3730×3330 | 520 | 480 | 2525 | 4225 | 12 | 88-23 | 23 | 21 | 10 | DKJ-610 | 4018 |
4000×3600 | 4070×4670 | 4130×4730 | 560 | 480 | 2725 | 4825 | 12 | 100-23 | 27 | 23 | 10 | DKJ-610 | 4532 |
良好的品质、优良的服务 青岛明哲运动鞋类有限公司为你创造更多价值!
“青岛明哲运动鞋类有限公司”的期望,不断提升服务质量,精益求精,“真诚的服务”是“青岛明哲运动鞋类有限公司”永恒的主题。“青岛明哲运动鞋类有限公司”严格按照IS09001-2000 质量体系认证要求,质量严格把关, 责任到人,确保生产、销售、服务的健康运行。加强与用户沟通,竭诚为广大客户提供优良产品,至善至美服务。特此我厂做出以下承诺:
产品标准:
产品严格按照中国GB、HG 标准和美国API等标准设计、制造、验收。密封面硬度达到国家规定要求,宽度超过国家标准。
售前服务:
产品介绍,技术交流,非标产品设计,疑难解答。
售中服务:
守信合同,保证及时供货,随时保持与客户联系。 对特殊或复制的产品,我厂安排技术人员对用户进行产品使用、故障排除
售后服务:
1、“青岛明哲运动鞋类有限公司”牌产品品质期为自出厂起12个月,实行“三包”服务(包退、包换、保修)。
2、产品在使用中我厂定期组织技术、质检人员进行访问,征询用户对产品质量、 使用状况、改进意见等方面的反馈, 以便进一步提高产品质量。
3、对用户投诉质量问题,快速作出反应,售后服务人员在24-36小时(省外48小时)赶赴现场。
4、对售后服务,要求用户填写服务后的质量反馈信息表,并作出鉴定意见,以便提高青岛明哲运动鞋类有限公司的服务质量。
1、客户如对产品有特殊要求,须在订货合同中提供以下说明:
a、结构长度;
b、连接形式;
c、公称直径、全通径、缩径、管道尺寸;
d、运行介质及温度、压力范围;
e、试验、检验标准及其他要求
2、本厂可根据客户特定要求配置各类驱动装置。
3、如由客户提供确定的阀门类型和型号时,客户应正确说明其型号的含义和要求,在供需双方理解一致的条件下签订合同。
4、期货、订货的客户请先来电函详细告诉所需的阀门型号、规格、数量以及交货时间、地点,并按总的30%预定金或全额货款及时汇入我厂帐户,其余货款待发货前汇入,以便及时安排发货。
订单流程:
1、客户采购清单传真至,或来电咨询
2、收到客户采购清单,为客户提供阀门型号选型与报价(价格清单)。
3、具体商定:交货期、特殊要求等事宜。
订货须知:
1、客户如对产品有特殊要求,须在订货合同中提供以下说明:
|
|||||
|
|||||
2、本厂可根据客户特定要求配置各类驱动装置。
|
|||||
3、如由客户提供确定的阀门类型和型号时,客户应正确说明其型号的含义和要求,在供需双方理解一致的条件下签订合同。
|
|||||
4、期货、订货的客户请先来电函详细告诉所需的阀门型号、规格、数量以及交货时间、地点,并按总的30%预定金或全额货款及时汇入我厂账户, 其余货款待发货前汇入,以便及时安排发货。
|
售中服务:
守信合同,保证及时供货,随时保持与客户联系。
对特殊或复制的产品,我厂安排技术人员对用户进行产品使用、故障排除
售后服务:
1、“青岛明哲运动鞋类有限公司”产品品质期为自出厂起12个月,实行“三包”服务(包退、包换、保修)。
2、产品在使用中我厂定期组织技术、质检人员进行访问,征询用户对产品质量、使用状况、改进意见等方面的反馈,
以便进一步提高产品质量。
3、对用户投诉质量问题,快速作出反应,售后服务人员在24-36小时(省外48小时)赶赴现场。
4、对售后服务,要求用户填写服务后的质量反馈信息表,并作出鉴定意见,以便提高“青岛明哲运动鞋类有限公司”的服务质量。
声明 |
|